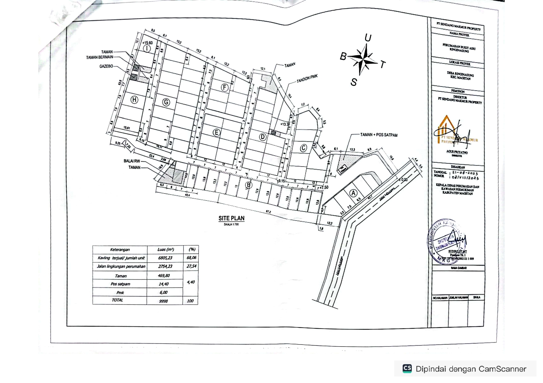
Detail Perumahan

Informasi lengkap mengenai Bukit Asri Ringinagung dari Dinas Perumahan Rakyat Dan Kawasan Permukiman Kabupaten Magetan.

Bukit Asri Ringinagung

Pengembang: PT. Sendang Makmur Property | Alamat: Ringinagung, Magetan

Selesai Penyerahan PSU Fisik

2023

76 unit

3245.00 m²

Lokasi Properti

Gambar Perumahan

Prasarana dan Utilitas

2789.00 m²

334.00 m²

Tidak ada

Tidak ada

Tidak ada

Tidak ada

122.00 m²

Site Plan